Extinpragas

Extinpragas

Desde fevereiro de 2004, uma empresa especializada no controle de vetores e pragas urbanas, oferecendo soluções seguras, eficientes e sustentáveis. Com tecnologia de ponta e equipe técnica qualificada, atendemos diversos segmentos — como hospitais, hotéis, escolas, restaurantes e indústrias — sempre com foco na qualidade, na responsabilidade ambiental e na tranquilidade dos nossos clientes.

Saiba mais
Extinpragas

Extinpragas

Desde fevereiro de 2004, uma empresa especializada no controle de vetores e pragas urbanas, oferecendo soluções seguras, eficientes e sustentáveis. Com tecnologia de ponta e equipe técnica qualificada, atendemos diversos segmentos — como hospitais, hotéis, escolas, restaurantes e indústrias — sempre com foco na qualidade, na responsabilidade ambiental e na tranquilidade dos nossos clientes.

Saiba mais

Soluções


Decorative Image 1

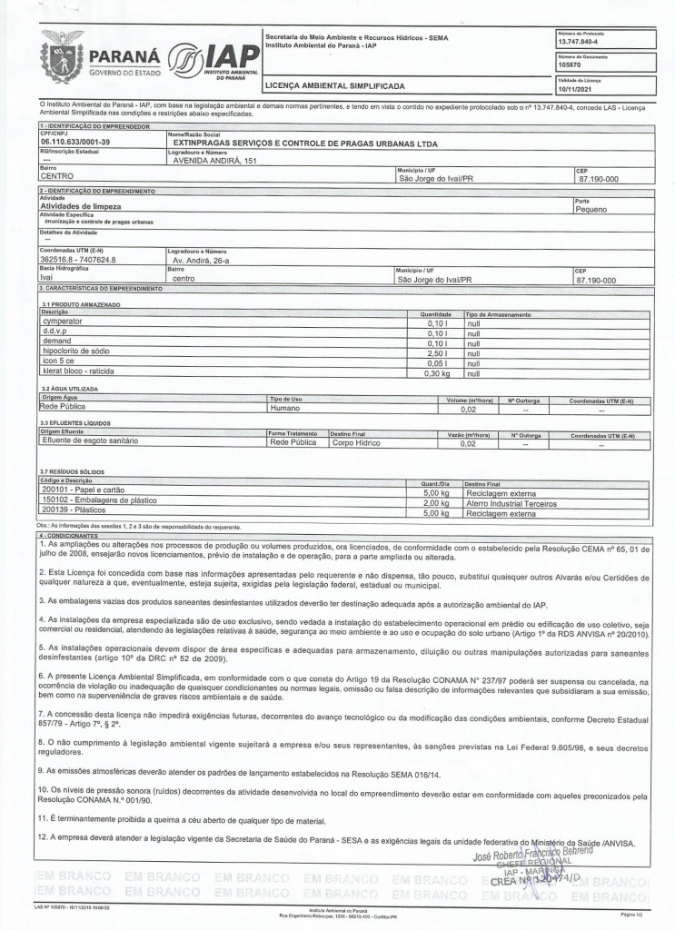
Certificações


A Extinpragas atua com total responsabilidade e dentro das normas legais, oferecendo serviços com qualidade e segurança. Contamos com todas as certificações exigidas para operação, o que reforça nosso compromisso com a excelência e a confiança dos nossos clientes.

Saiba mais

Nossos clientes


Nossos clientes